Obtenez votre étude gratuite personnalisée pour connaître votre future mensualité.

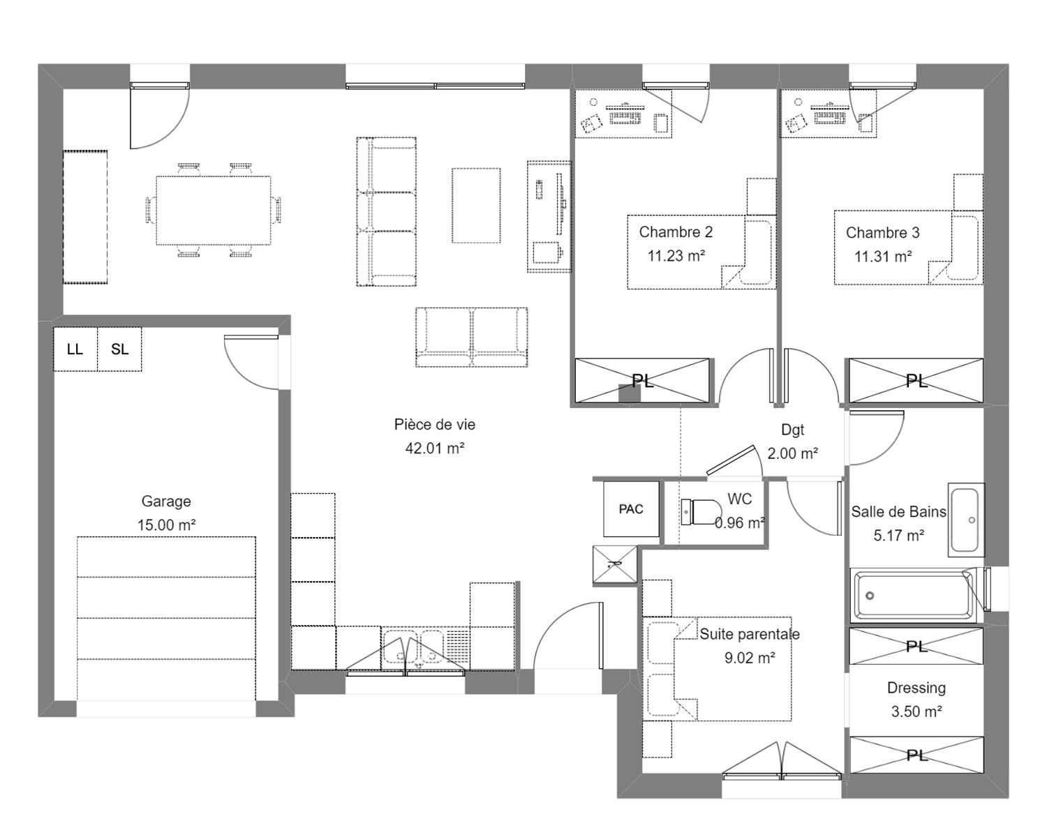
Maison individuelle de 85 m² 5 pièces avec 3 chambres
Terrain d'une surface totale de 406 m²
Découvrez notre nouveau lotissement de 25 terrains constructibles viabilisés à Pluvigner. Situé dans un cadre paisible, ce lotissement offre une occasion unique de construire votre maison de rêve. Chaque terrain sera prêt à accueillir votre nouvelle demeure, avec les raccordements pour l’électricité, l’eau et le tout-à-l’égout, simplifiant ainsi le processus de construction. Les tailles des terrains varient de 283 à 1161 mètres carrés, offrant une flexibilité pour construire la maison qui correspond à vos besoins. Le lotissement est idéalement situé, avec un accès facile aux écoles, commerces, services de santé et espaces de loisirs de Pluvigner. De plus, la commune bénéficie d’excellentes liaisons routières vers les villes voisines. Que vous soyez un jeune couple, une famille ou un investisseur, ce lotissement répondra à vos attentes.
Prix avec assurance dommages-ouvrage comprise, hors VRD, terrain viabilisé, assainissement compris, frais de notaire non compris, taxes non comprises, frais divers non compris. Terrain sélectionné et vu pour vous sous réserve de disponibilité et au prix indiqué par notre partenaire foncier. Visuels non contractuels.
Contactez notre Siège de Vannes au 02 97 49 88 48 ou bien demandez votre étude gratuite et sans engagement ci-dessous.

